+7 800 200-7967
+7 495 320-7967
callback_icon
Обратный звонок
Каталог
Меню
Главная
О нас
Каталог продукции
3d модели
Монтаж
Фотогалерея
Видео
Отзывы
Новости и статьи
Инфоцентр
Оплата и доставка
Контактная информация
Каталог
Световые 3d панели
Световые 3d панели из гипса
Световые 3d панели из МДФ
Гипсовые 3d панели
Элементы декора и 3d панно
Предметы интерьера
Световые 3d панели
Гипсовые 3d панели
Элементы декора и 3d панно
Предметы интерьера
Световые 3d панели
Световые 3d панели из гипса
Световые 3d панели из МДФ
Гипсовые 3d панели
Элементы декора и 3d панно
Предметы интерьера
Изготовление и монтаж 3D панелей индивидуального дизайна. Проект дизайн-студии "NIDO Interiors".
Визуализация кухни, для оформления потолка использованы 3d панели из гипса. Проект дизайн-студии "NIDO Interiors". Панелей было 3 разных вида с разными рисунками - для стен, для потолка и для санузла
Визуализация детской комнаты, для оформления стен под потолком использованы 3d панели из гипса. Проект дизайн-студии "NIDO Interiors".
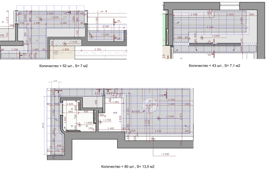
Общая площадь смонтированных панелей составила 60 м2, из них 30 м2 - это панели смонтированные на потолок. Пример расчета количества панелей (потолок).
Пример расчета количества панелей (стены).
Чертеж панели для потолка.
Визуализация панели для потолка. Потолочные панели должны быть облегченными, но также прочными, поэтому для них была изготовлена отдельная форма с более низким профилем рисунка
Чертеж панели для санузла (канеллюры).
Визуализация панели для санузла (канеллюры). Панели для одного из санузлов (каннелюры) должны были быть влагостойкие и иметь повышенную прочность, ну и конечно же точную геометрию, для более простого монтажа панели были спроектированы размером 800*550 мм.
Проверка геометрии панели на производстве перед упаковкой - идеально! Для потолочных и настенных панелей использовалась стандартный гипсовый компаунд из высокопрочного Альфа гипса.
Поверхность панели должна быть гладкой и без изъянов!
Изготовленные каннелюры - гладкая поверхность без изъянов и точная геометрия! Для изготовления каннелюр в санузел использовался усиленный гипсовый компаунд (прочность - до 35 МПа при сжатии). Панели в санузел, кроме того, были сделаны влагостойкими.
Фото поверхности каннелюр.
Смонтированные и покрашенные потолочные панели.
Смонтированные и покрашенные потолочные панели.
Смонтированные и покрашенные стеновые панели. Особое внимание было уделено стыкам на внешних и внутренних углах.
Смонтированные и покрашенные стеновые панели. Особое внимание было уделено стыкам на внешних и внутренних углах.
Смонтированные и покрашенные стеновые панели. Особое внимание было уделено стыкам на внешних и внутренних углах.
Смонтированные и покрашенные стеновые панели. Особое внимание было уделено стыкам на внешних и внутренних углах.
Смонтированные и покрашенные стеновые панели. Особое внимание было уделено стыкам на внешних и внутренних углах.
Смонтированные и покрашенные стеновые панели. Особое внимание было уделено стыкам на внешних и внутренних углах.
Смонтированные и покрашенные потолочные панели.
Итоговое фото смонтированных панелей.
Итоговое фото смонтированных панелей.
Итоговое фото смонтированных панелей.
Смонтированные каннелюры, осталось обработать швы и покрасить.
Удалить товар
Вы точно хотите удалить выбранный товар? Отменить данное действие будет невозможно.
Копировать ссылку
Отправить на E-mail
MAX
Telegram
WhatsApp
ВКонтакте
Одноклассники
Удалить